ESC bezárás

Az alkalmazás feltételei:

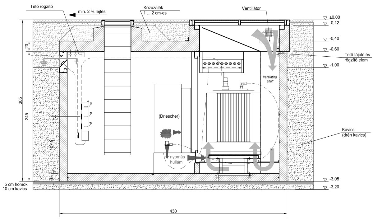
A KTW-1000-F típusú transzformátorállomás fő alkalmazási területe – telepítési jellegéből adódóan – a nagyvárosi lakókörzetek energiaellátásában kereshető, de kedvezően alkalmazható kisebb településeken, vagy saját elosztóberendezéssel rendelkező kis energiaigényű fogyasztói (ipari) létesítmények állandó energiaellátására is. A transzformátorállomás villamosan készreszerelve kerül ki az összeszerelő üzemből, így a telepítés helyszínén csak a transzformátort kell az állomásba beszerelni.
A KTW transzformátorállomások olyan helyekre építhetők be, ahol kábeles táplálásuk megoldható, a hálózat névleges feszültsége, ill. zárlati teljesítménye nem haladja meg a műszaki adatokban közölt értékeket, továbbá az állomás a jelen dokumentumban előírtaknak megfelelően telepíthető.

© 2026. KVGY Kft., Minden jog fenntartva | Adatkezelés
Portal & Code: ThunderStudio